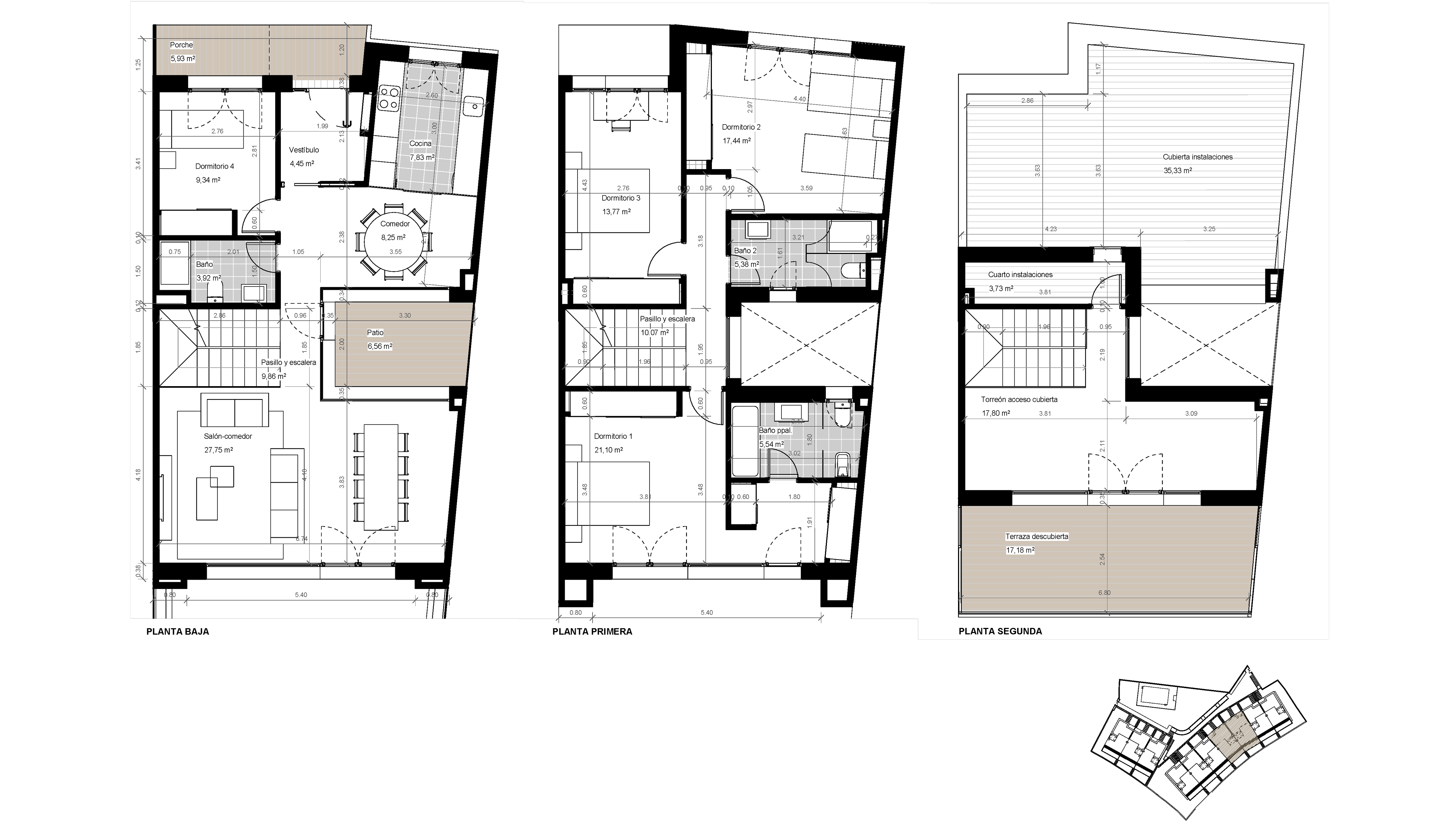
El proyecto desarrollado para Ortega Desarrollos Inmobiliarios, consta de 10 viviendas unifamiliares agrupadas en hilera, dispuestas en torno a un jardín común interior donde se sitúa la piscina. Cuenta con un bajo rasante en el que se encuentran los sótanos y el aparcamiento.
Concebidas para ser ejecutadas de forma totalmente industrializada a partir de muros divisorios estructurales y grandes paneles prefabricados arquitectónicos en fachada. Las carpinterías irán fijadas sobre estos paneles. Y todo el interior llevará un aislamiento continuo y una lámina para asegurar la estanqueidad que requiere una vivienda Passivhaus.
Para obtener la certificación Passivhaus se ha empleado tecnología de aerotermia de alta eficacia para la climatización con suelo radiante – refrescante y ventilación de doble flujo para el intercambio de calor. Toda la envolvente (muros, cubierta, solera y ventanas) está dotada de un gran aislamiento y un eficaz resistencia térmica para disminuir las demanda energética y favorecer el confort interno.












